2mm architektai logotipas
  • Pagrindinis
  • Paslaugos
    • Daugiabučiai
    • Gyvenamieji namai
    • Interjeras
    • Maketavimas
    • Sandėliavimo pastatai
    • Visuomeniniai pastatai
  • Komanda
  • Kontaktai

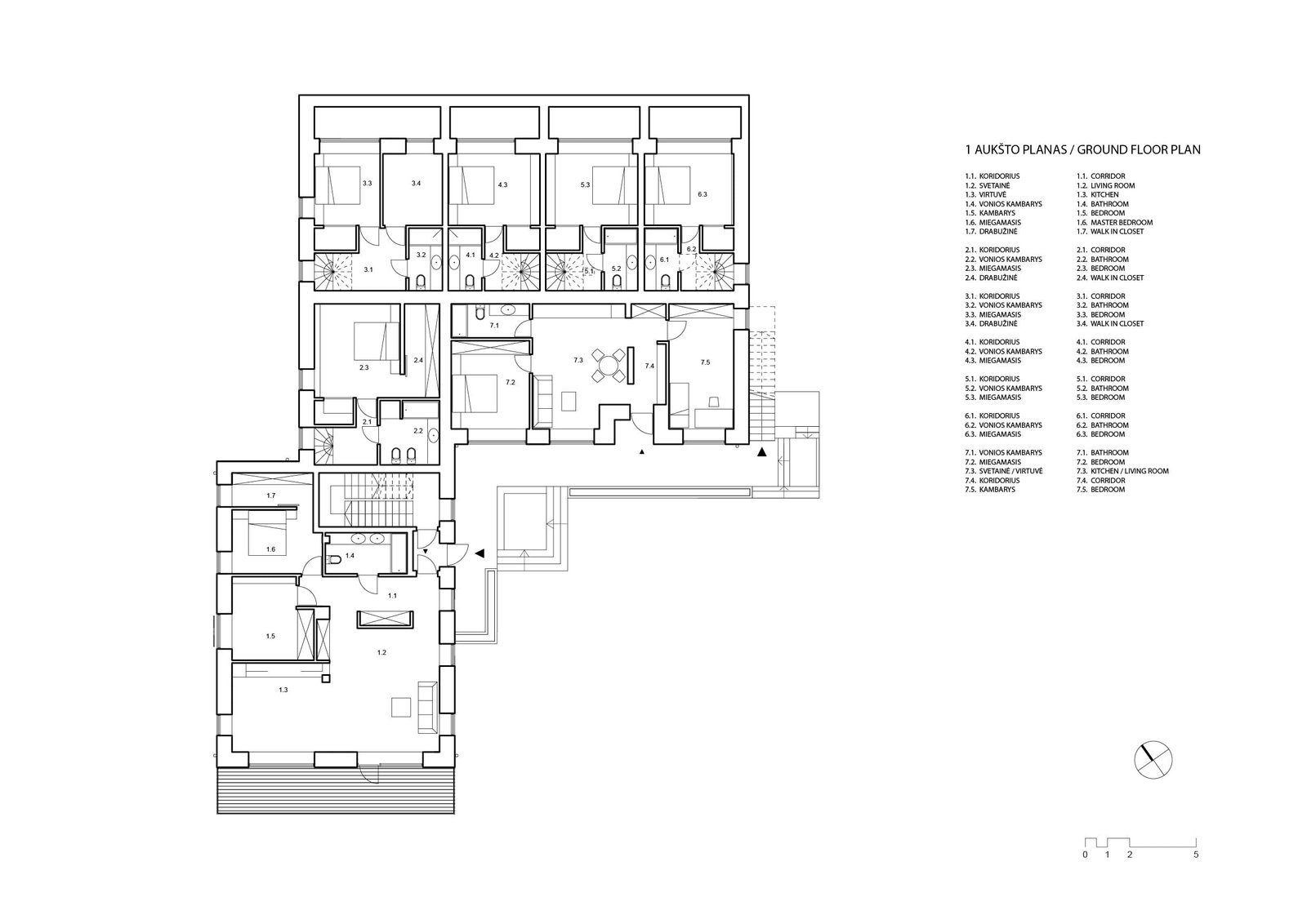
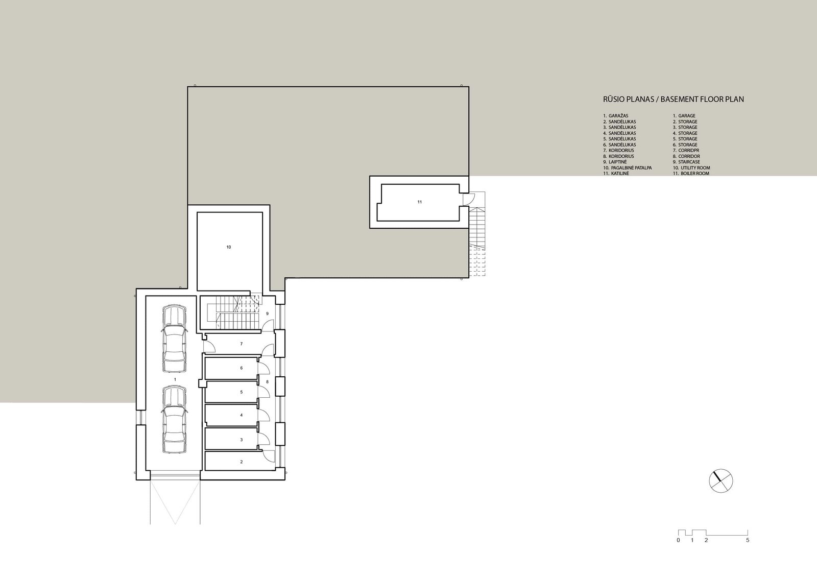
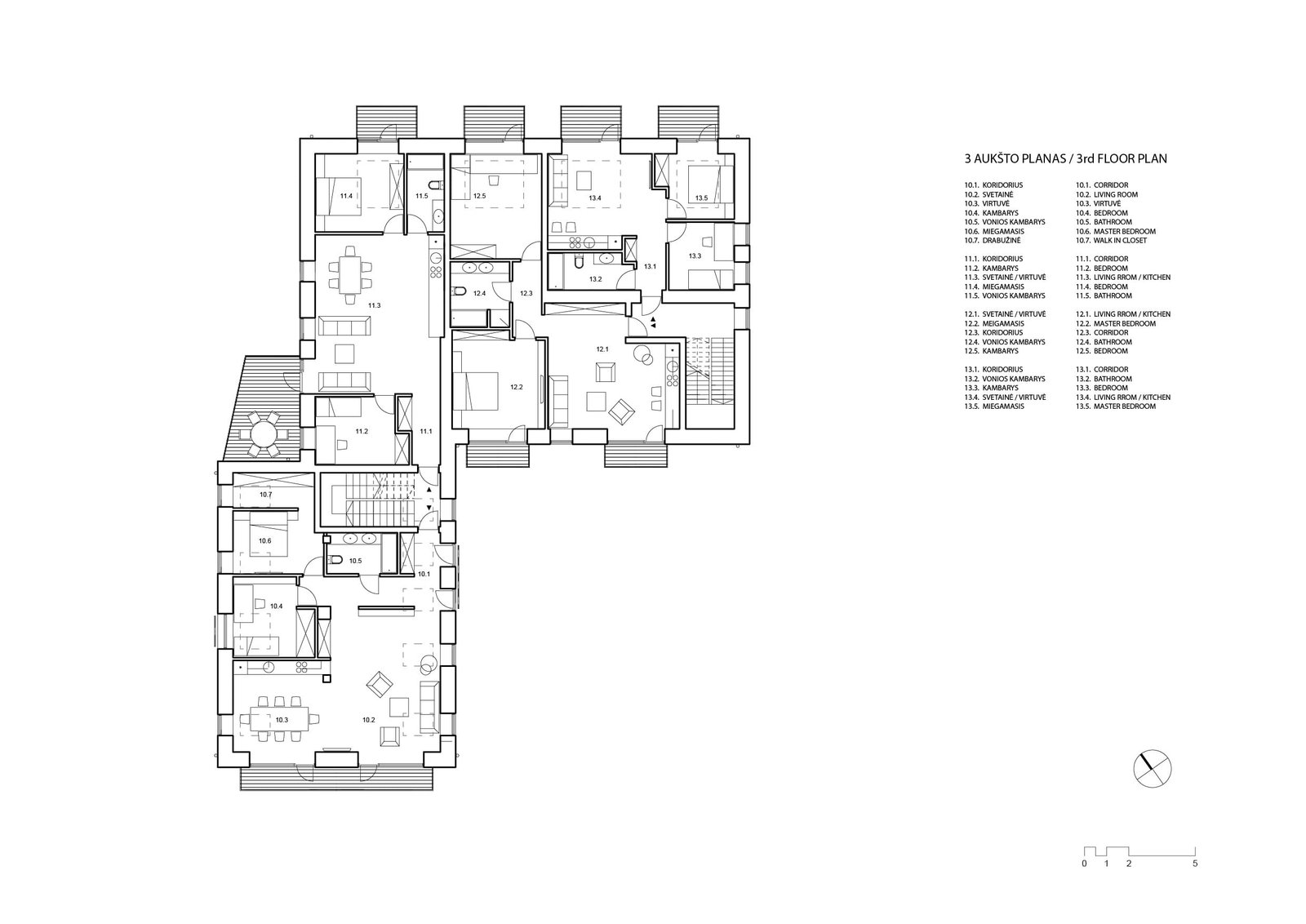
DAUGIABUTIS KAČERGINĖJE

TIPAS: Gyvenamieji namai
KOMANDA: Mindaugas Puodžiukynas, Mindaugas Butvila
← Ankstesnis Sekantis →