VIENBUTIS NAMAS ŽUVĖDRŲ GATVĖJE

TIPAS: Gyvenamasis namas
VIETA: Vilnius, Žuvėdrų g. 67
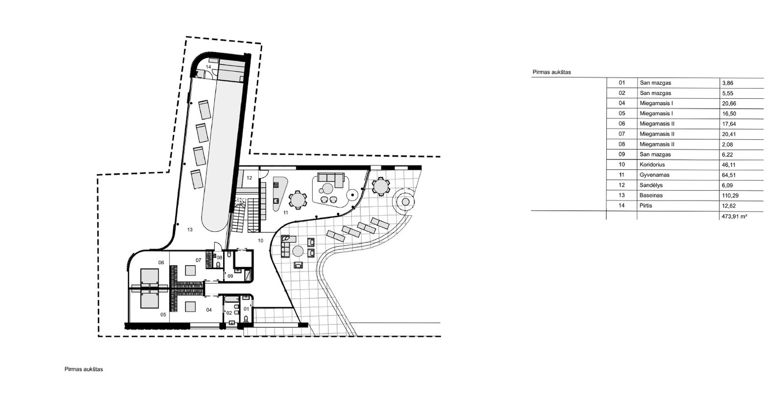
PLOTAS: 473,91 m2
KOMANDA: Mindaugas Puodžiukynas, Guoda Majauskaitė