2mm architektai logotipas
  • Pagrindinis
  • Paslaugos
    • Daugiabučiai
    • Gyvenamieji namai
    • Interjeras
    • Maketavimas
    • Sandėliavimo pastatai
    • Visuomeniniai pastatai
  • Komanda
  • Kontaktai

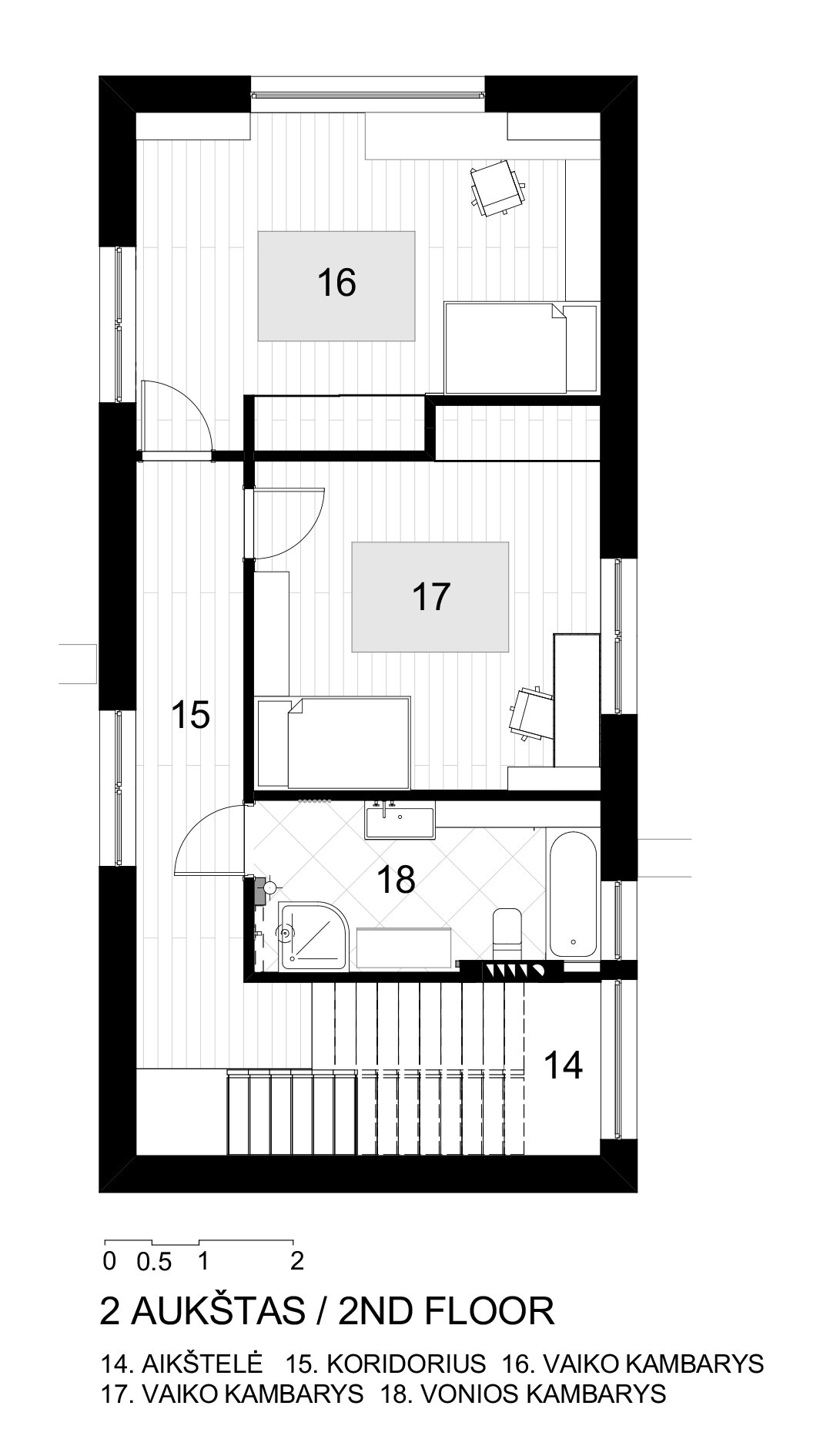
GYVENAMOJO NAMO INTERJERAS ROMAINIUOSE

TIPAS: Interjero dizainas
VIETA: Romainiai
KOMANDA: Mindaugas Puodžiukynas
← Ankstesnis Sekantis →