2mm architektai logotipas
  • Pagrindinis
  • Paslaugos
    • Daugiabučiai
    • Gyvenamieji namai
    • Interjeras
    • Maketavimas
    • Sandėliavimo pastatai
    • Visuomeniniai pastatai
  • Komanda
  • Kontaktai

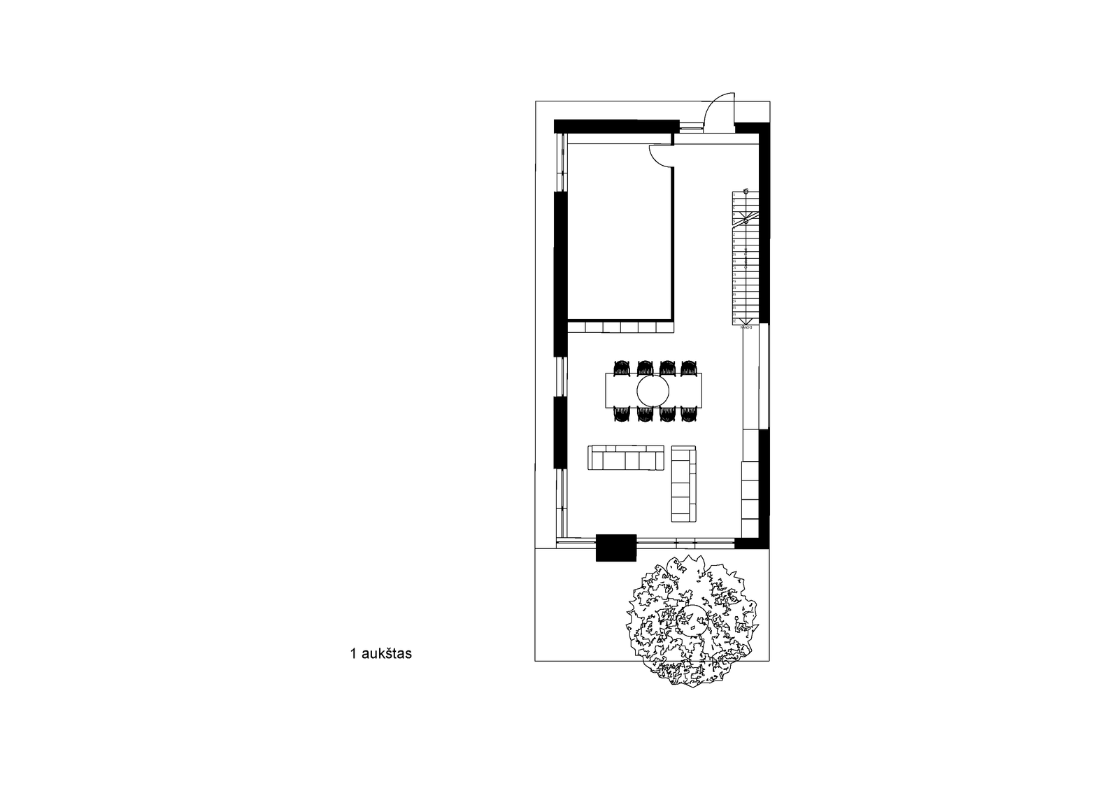
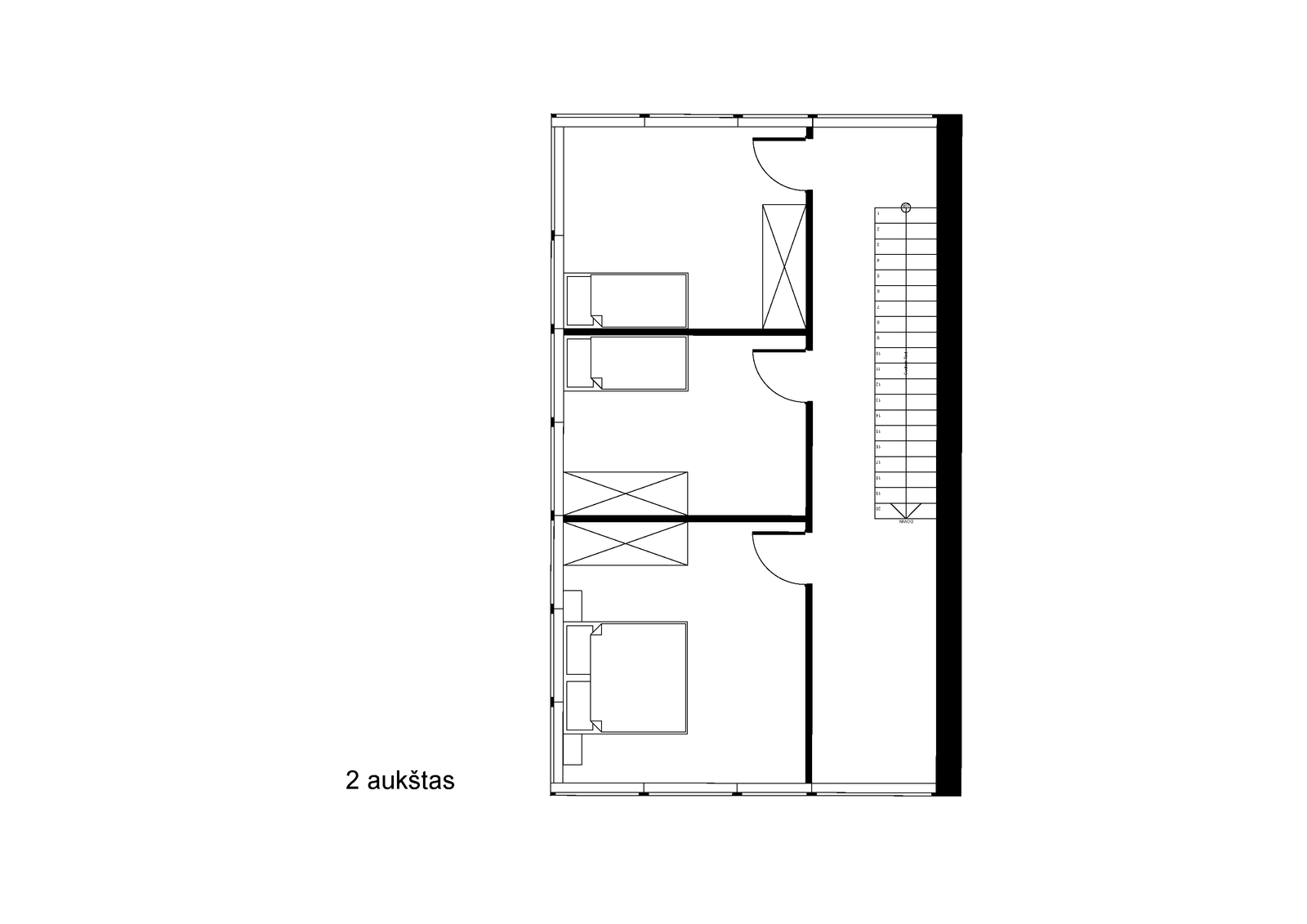
VIENBUČIŲ KVARTALAS DRUSKININKUOSE

TIPAS: Gyvenamieji namai
VIETA: V. Krėvės g. Druskininkai
KOMANDA: M. Puodžiukynas
← Ankstesnis Sekantis →