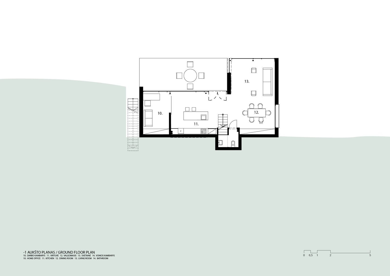
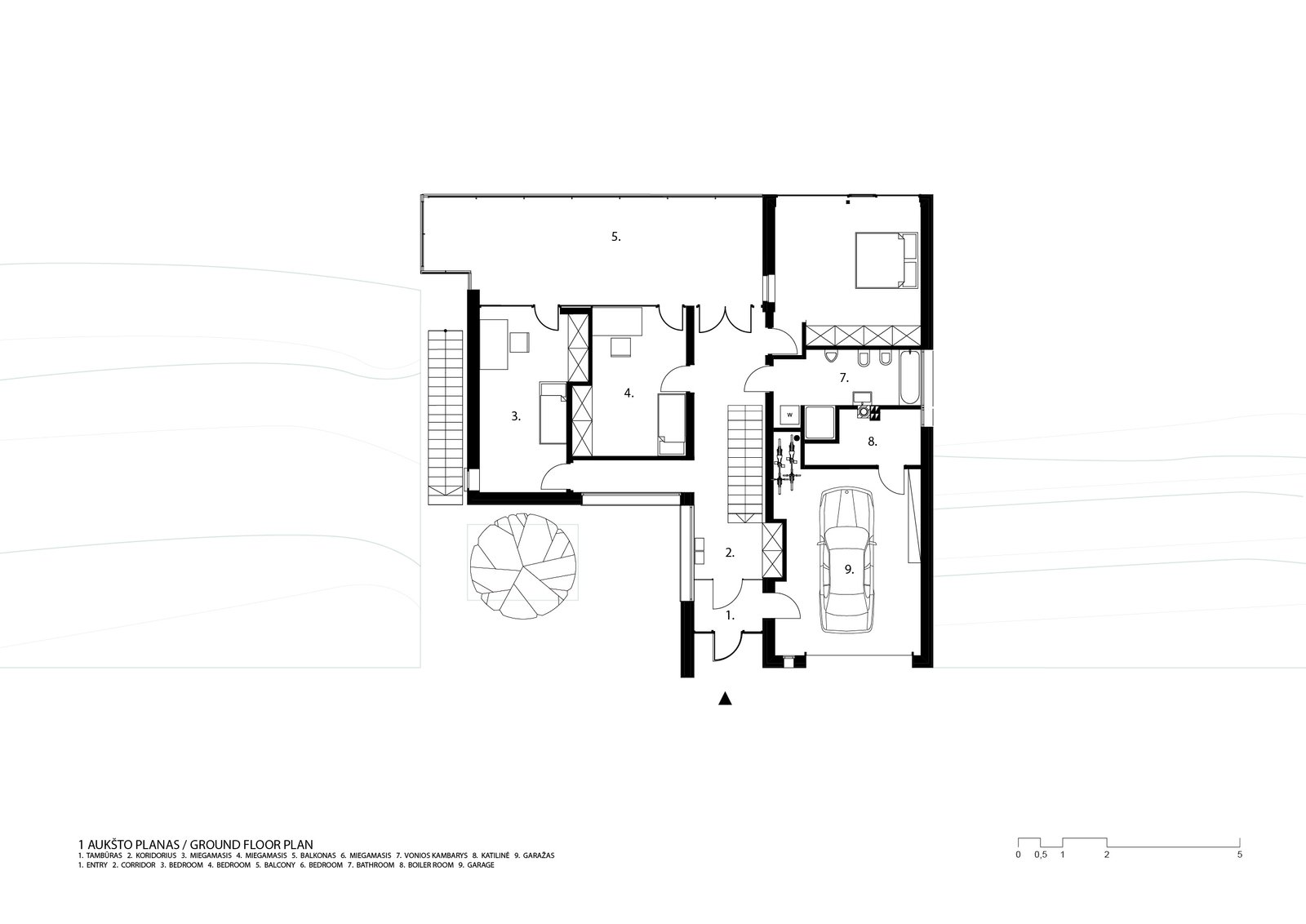
VIENBUTIS KAČERGINĖJE, J. JANONIO GATVĖJETIPAS: Gyvenamieji namaiVIETA: J. Janonio g., KačerginėKOMANDA: Mindaugas Puodžiukynas ← Ankstesnis Sekantis →